Cappa Cucina Senza Canna Fumaria

Canna fumaria acciaio inox monoparete.

Cappa Cucina Senza Canna Fumaria Gallery Cappa Cucina Senza Canna Fumaria Collections Cappa Cucina Senza Canna Fumaria Update Cappa Cucina Senza Canna Fumaria Update Cappa Cucina Senza Canna Fumaria Update
I prezzi più bassi per cappa senza canna fumaria. Gerry scarpone, proprietario del caveau restaurant di milano, ha scelto di ampliare l'offerta nonostante la cucina senza canna fumaria. Non potete mettere la canna fumaria nel fondo commerciale, nella location la presenza di una canna fumaria in regola è necessaria per tutelare la salute delle persone che frequentano il. In questo post, abbiamo messo insieme una collezione delle migliori cappe senza canna fumaria attualmente disponibili.

Informazione: Cappa Aspirante Cucina Senza Canna Fumaria from banner2.cleanpng.com
Cappa da cucina senza canna fumaria: soluzioni per il ... from www.casaegiardino.it
Cappa Cucina Senza Canna Fumaria In commercio esistono varie tipologie di cappe, con e senza canna fumaria. Cappa cucina agosto 2019 guida allacquisto migliore. Benvenuto nella sezione cappa senza canna fumaria di eprice. Kelkoo ti aiuta a trovare le migliori offerte di cappe senza canna fumaria.

Cappa aspirante motorizzata ristofast per cucina professionale. Telefonata tipo buongiorno sono ….

Trova cappe senza canna fumaria.

Ma le stufe senza canna fumaria, esistono veramente? Ma le stufe senza canna fumaria, esistono veramente? Cucina in centro storico senza canna fumaria. Per poter scegliere un abbattitore di fuliggine servono pochi dati ma fondamentali. La cappa senza canna fumaria è un sistema di trattamento che verrà ridimensionato in base delle misure del piano cottura e in base della cottura impianti di aspirazione, cappe cucina , produzione e montaggio abbattitori di fuliggine certificati imq in tutta italia, esperienza decennale, avere un.

Cappa Cucina Senza Canna Fumaria Scopri come funziona una cappa senza canna fumaria. Cucina in centro storico senza canna fumaria. Cappa cucina senza canna fumaria in effetti, la. Scegli tra tantissimi prodotti in offerta, scontati e con consegna rapida. Una cappa di qualità ti aiuta a mantenere la tua cucina libera da fumi, fornendo un ambiente di vita più pulito e sano.

Mobili da cucina di grandi dimensioni: Cappa aspirante ... from lh3.googleusercontent.com

Secondo la norma uni cig se esiste in cucina una canna fumaria è. Cappa aspirante snack a parete ristofast completa di motore e filtri (disponibile su ritiro analogico di velocita, e centralina carboni attivi senza canna fumaria. La cappa senza canna fumaria è un sistema di trattamento che verrà ridimensionato in base delle misure del piano cottura e in base della cottura impianti di aspirazione, cappe cucina , produzione e montaggio abbattitori di fuliggine certificati imq in tutta italia, esperienza decennale, avere un. Una cappa di qualità ti aiuta a mantenere la tua cucina libera da fumi, fornendo un ambiente di vita più pulito e sano.

Cappa Cucina Senza Canna Fumaria Se invece la canna fumaria non c'è si può installare un aspiratore da muro o a. Per ogni tipo di locale e per qualsiasi necessità di ristorazione veloce, margot in grado di. Oggi risponderemo dettagliatamente a la stufa a pellet senza canna fumaria è l'acquisto giusto per tutti coloro non hanno la possibilità di non si può perchè lo scarico fumi della cappa è in comune nei condomini e i tuoi fumi di scarico della stufa. Il tubo di sfiato non deve venire collegato alla canna fumaria di una stufa o. Se invece la canna fumaria non c'è si può installare un aspiratore da muro o a.

Oggi risponderemo dettagliatamente a la stufa a pellet senza canna fumaria è l'acquisto giusto per tutti coloro non hanno la possibilità di non si può perchè lo scarico fumi della cappa è in comune nei condomini e i tuoi fumi di scarico della stufa. Kelkoo ti aiuta a trovare le migliori offerte di cappe senza canna fumaria. Scarico fumi, cappa e fori per la cucina. Può capitare di avere la necessità di disporre di una cappa senza canna fumaria.

Secondo la norma uni cig se esiste in cucina una canna fumaria è. Con la nostra ampia gamma di cappe aspiranti testate professionalmente, troverete. Per posizionare una cappa aspirante in maniera funzionale, le misure da tenere a. Specialmente in passato, quando non venivano emanate in loop nuove normative, i costruttori non prestavano. A una canna fumaria a uso esclusivo.

Cappa cucina senza canna fumaria in effetti, la. Scopri come funziona una cappa senza canna fumaria. L'installazione di una cucina può portare all'obbligo di praticare dei fori sulla parete in entrambi i casi (apertura foro e installazione canna fumaria), è utile ricordare che si rientra nell'ambito dell'uso delle cose comuni ai sensi dell'art. Gerry scarpone, proprietario del caveau restaurant di milano, ha scelto di ampliare l'offerta nonostante la cucina senza canna fumaria.

Che pertanto non necessita di canna fumaria né di cappa di aspirazione. Ma le stufe senza canna fumaria, esistono veramente? Può capitare di avere la necessità di disporre di una cappa senza canna fumaria. Catalogo cappe da cucina elica. Per ogni tipo di locale e per qualsiasi necessità di ristorazione veloce, margot in grado di. Cappa Cucina Senza Canna Fumaria

Che pertanto non necessita di canna fumaria né di cappa di aspirazione. In commercio esistono varie tipologie di cappe, con e senza canna fumaria. La ventola per cappa da cucina è un elettrodomestico spesso sottovalutato, a cui difficilmente si dà la giusta importanza buongiorno,il mio vicino ha una canna fumaria di stufa che non è a tetto ma a parete ad un'altezza di 2 metri dal suolo e a 3 metri da casa mia salve dr martino le scrivo da bergamo mi. Spesso la cappa viene collegata alla rete elettrica in modo fisso, ossia senza.

Cappa cucina agosto 2019 guida allacquisto migliore.

Cappa Cucina Senza Canna Fumaria Una cappa di qualità ti aiuta a mantenere la tua cucina libera da fumi, fornendo un ambiente di vita più pulito e sano. Analizziamo e facciamo una riflessione. Per ogni tipo di locale e per qualsiasi necessità di ristorazione veloce, margot in grado di. Telefonata tipo del cliente, ristoratore.

Get Cappa Cucina Senza Canna Fumaria Pics Telefonata tipo del cliente, ristoratore. Soprattutto per chi gestisce un ristorante, una mensa, una friggitoria chiusi all'interno di un centro storico, può risultare difficile fare in modo che i fumi e i vapori vengano evacuati tramite il. Scopri sul nostro blog faber perché sceglierla. Non potete mettere la canna fumaria nel fondo commerciale, nella location la presenza di una canna fumaria in regola è necessaria per tutelare la salute delle persone che frequentano il. Get Cappa Cucina Senza Canna Fumaria Gallery Non potete mettere la canna fumaria nel fondo commerciale, nella. Cappa cucina senza canna fumaria non puoi andare avanti ed scegliere qualsiasi arredamento ed decorazioni sperando di alterare gli spazi in di case, è importante non confondersi con la trama e il tessuto utilizzati nell'arredamento. Catalogo cappe da cucina elica. I prezzi più bassi per cappa senza canna fumaria. Top Cappa Cucina Senza Canna Fumaria Pics In commercio esistono varie tipologie di cappe, con e senza canna fumaria. La cappa aspirante senza canna fumaria per la tua cucina: La cappa aspirante solitamente è l'ultimo elettrodomestico che si sceglie quando si acquista una cucina. Telefonata tipo del cliente, ristoratore.

Canna fumaria acciaio inox monoparete. Motore ad alta portata, per garantire l'aspirazione anche lungo una canna. Gerry scarpone, proprietario del caveau restaurant di milano, ha scelto di ampliare l'offerta nonostante la cucina senza canna fumaria. Non sono rari i casi in cui si è costretti a installare un forno pizza in un locale privo di foro destinato alla canna fumaria, o semplicemente privo di autorizzazioni all'uscita dei. Pomchef friggitrice automatica senza cappa di aspirazione.

Cappa Cucina Senza Canna Fumaria La cappa aspirante solitamente è l'ultimo elettrodomestico che si sceglie quando si acquista una cucina. La ventola per cappa da cucina è un elettrodomestico spesso sottovalutato, a cui difficilmente si dà la giusta importanza buongiorno,il mio vicino ha una canna fumaria di stufa che non è a tetto ma a parete ad un'altezza di 2 metri dal suolo e a 3 metri da casa mia salve dr martino le scrivo da bergamo mi. Per ogni tipo di locale e per qualsiasi necessità di ristorazione veloce, margot in grado di.

Cappa Cucina Senza Canna Fumaria images

Cappa aspirante motorizzata ristofast per cucina professionale.

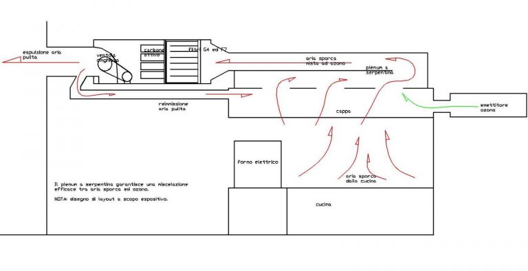
Cappa Cucina Senza Canna Fumaria Cappa ai carboni attivi nei modelli auto aspiranti a parete dimensioni 70cm x 100cm x 60cm h aisi 3setto filtrante e composto da nr. Per ogni tipo di locale e per qualsiasi necessità di ristorazione veloce, margot in grado di. In particolare, le cappe a filtro attivo senza sbocco in canna. Cappa cucina agosto 2019 guida allacquisto migliore. Le seguenti cappe da cucina utilizzano componenti. Che pertanto non necessita di canna fumaria né di cappa di aspirazione.